
기록은 쌓아가는 것이다. 기록은 현대의 삶에 지혜이다. 기록은 새하얀 백지이다.
기록을 정의 내려 본 적이 있는가? 우리는 수많은 기록 속에서 살고 있지만 우리가 살아가면서 [기록]의 본질과 형태에 관해 생각해 보는 일은 거의 없을 것이다. 개인마다 생각하는 가치는 다르기에. 또 살아온 경험이 다르기에. 기록에 대한 정의 또한 모두 다르다. 그러므로 [기록]은 쉽게 정의 내리기도, 형태화하기도 쉽지 않다.

우리가 겪는 매순간순간은 기록이다. 시간의 결정들이 모여 역사가 되고, 그 역사의 기록들은 사실을 기반한 명백한 진실이어야 한다. 이렇게 기록될 때, 투명하고 정직한 기록물이 쌓이게 되고, 우리는 이것을. [국가기록박물관]에서 경험하게 된다.

그렇다면 우리 국가의 역사는 어떻게 기록되어 왔을까?
춘추관 : 고려 · 조선시대 한 나라의 시정을 기록하고, 실록을 편찬하며 기록물을 관리, 보존하는 일을 담당한다.
60명의 사관들이 편찬한 기록물은 궁궐 안의 내사고와 궁궐 밖의 충주, 성주, 진주의 외사고에 나누어 안전하게 보관된다. 현재는 국가기록원, 나라기록관 등 여러 외사고가 존재하고 있으며, 궁궐 건축을 모티브로 한 박물관 단지 속, 새롭게 지어질 기록 박물관이 국가 기록의 중요한 거점 역할을 하게 된다.

현존하는 기록관들은 기록물을 수집, 보존, 복원하는 역할을 중요히 다뤄왔다. 기록물의 안전이 가장 중요하게 여겨졌고, 건축물의 형태 또한 기록물을 보호하는 형상을 가지고 있다.

이런 관점에서 새롭게 지어질 [박물관] 의 기능은 사뭇 다르다. 관람자들에게 역사의 기록을 알리고 경험하게 하면서 그 기능의 의미가 생긴다. 이렇게 기록관과 박물관의 차이점을 만들 필요를 느꼈으며, 그렇다면 이번 국가기록박물관은 어떤 모습이 되어야 할까.

쉬지 않고 흐르는 시간 속에서 겹겹이 역사의 기록들은 켜를 더해간다. 그렇게 다시 세상에 펼쳐지는 [국가기록박물관] 국가의 기록은 역사적 사실을 기반으로 한 책임 있는 흔적으로 투명성을 바탕으로 한다. 기록이 투명함을 유지하지 못하면, 그 어떤 믿을만한 정보도 역사적인 증거도 될 수 없을 것이다.

건축에 있어 투명성은 다양한 의미를 내포한다. 주 마감재인 유리는 건물의 안과 밖의 경계를 연결하고, 이곳 기록 박물관에서는 주변의 자연을 경험하게 해준다. 또, 내 · 외부의 연속적인 행위에 있어 새로운 관계를 만들어 주며, 중첩되는 기록물과 현재의 장면으로 입체적인 기록 공간을 지각할 수 있게 도와준다.
단지 내 다른 박물관마다의 다양한 정의 속에서 기록 박물관의 차별화된 어휘를 통해 자연, 기록, 공간이 서로 어우러져 있는 우리의 국가기록박물관이 탄생한다.

해당 대지는 북측으로 4개의 인접 박물관과 서측으로 제천, 독락정 역사공원, 동측의 중앙광장, 중앙공원을 곁에 두고 있다. 그리고 남측으로 국립민속박물관과 그 너머, 금강의 자연을 유입해 기록 박물관 속에 자연스레 그 자연들이 투영된다.
단지 맥락적 흐름에서 1구역의 마지막에 위치하는 기록 박물관은 한 구역의 끝맺음 역할을 하며, 2구역이 다시 시작되는 연결 지점으로 연속적인 공간으로서의 이중성을 내포한다.

전체적인 비움과 채움 속, 선큰과 건물의 조화로운 흐름이 만들어지며, 마스터플랜에 부합하는 연결성과 통일성을 갖추게 된다. 각 박물관마다의 쾌적한 선큰배치로 지하 박물관 거리에 자연을 유입시키고 서로의 하부 공간이 유연하게 공유된다. 또, 그사이마다 채워지는 건물들에 의해 주변 맥락과 어우러진 경관이 완성되며 서로를 연결하는 지상의 회랑을 통해 전통 궁궐 건축처럼 전체적인 건물의 질서를 부여하게 된다.

우리 국가기록박물관은 회랑의 흐름을 건물의 중앙부에서 온전히 받아주어, 1구역을 완성함과 동시에 1층을 띄워 공용공간과 외부공간으로 2구역과의 연결성을 만들어 준다.

기록 박물관과 바로 인접해 있는 디지털 문화유산센터는 해당 대지의 북측 경계에 완전히 맞닿아 있다. 때문에 쾌적한 마스터플랜을 구축하기 위해 두 건물 사이에 충분한 이격 거리를 확보하여, 단지 내 건축의 질서들을 더욱 조화롭게 만든다. 또, 사방에 진입마당을 두어 건물에 들어가기 전 박물관이 갖는 심리적 경계를 없애고 열린 공간으로 관람객들을 편안하게 끌어당긴다. 사방으로 트인 대상지에서 관람객의 진입 편의성을 높이고, 건물과 자연이 공존하는 공간을 만든다. 박물관 단지의 전시 관람 동선을 받아주는 회랑 쪽으로 단지 내 국가기록박물관의 인지성과 정면성을 만들어 주고, 가장 중요한 보행자와 차량 영역의 완벽한 동선 분리로 보행환경을 안전하게 만들어 준다.

그 속에 만들어지는 4개의 선큰마당은 계절마다 변하는 시간 속에서 새로운 기록을 만들어 나간다. 서로 다른 마당은 지하 박물관 거리와 각 마당이 면하는 프로그램에 쾌적한 전시환경을 제공하며, 지상층으로 직접 연결되는 각각의 수직 동선은 중앙광장과도 쉽게 연속된다.

다양한 외부공간 속 채워지는 60그루 기록의 정원은 과거, 춘추관 속 60명의 사관과 대교, 정자, 검열, 봉교 4개의 직급을 야외마당의 모티브로 구성하였다. 또한, 기록과 관련된 식재들 중 방향과 방충의 역할을 하는 창포와 천궁, 전통한지의 재료인 닥나무, 실록 푸른 표지와 노란 표지에 염색되는 쪽나무와 황벽나무 등을 심어 기록을 직접 복원하는 관람객의 체험활동에 활용된다.

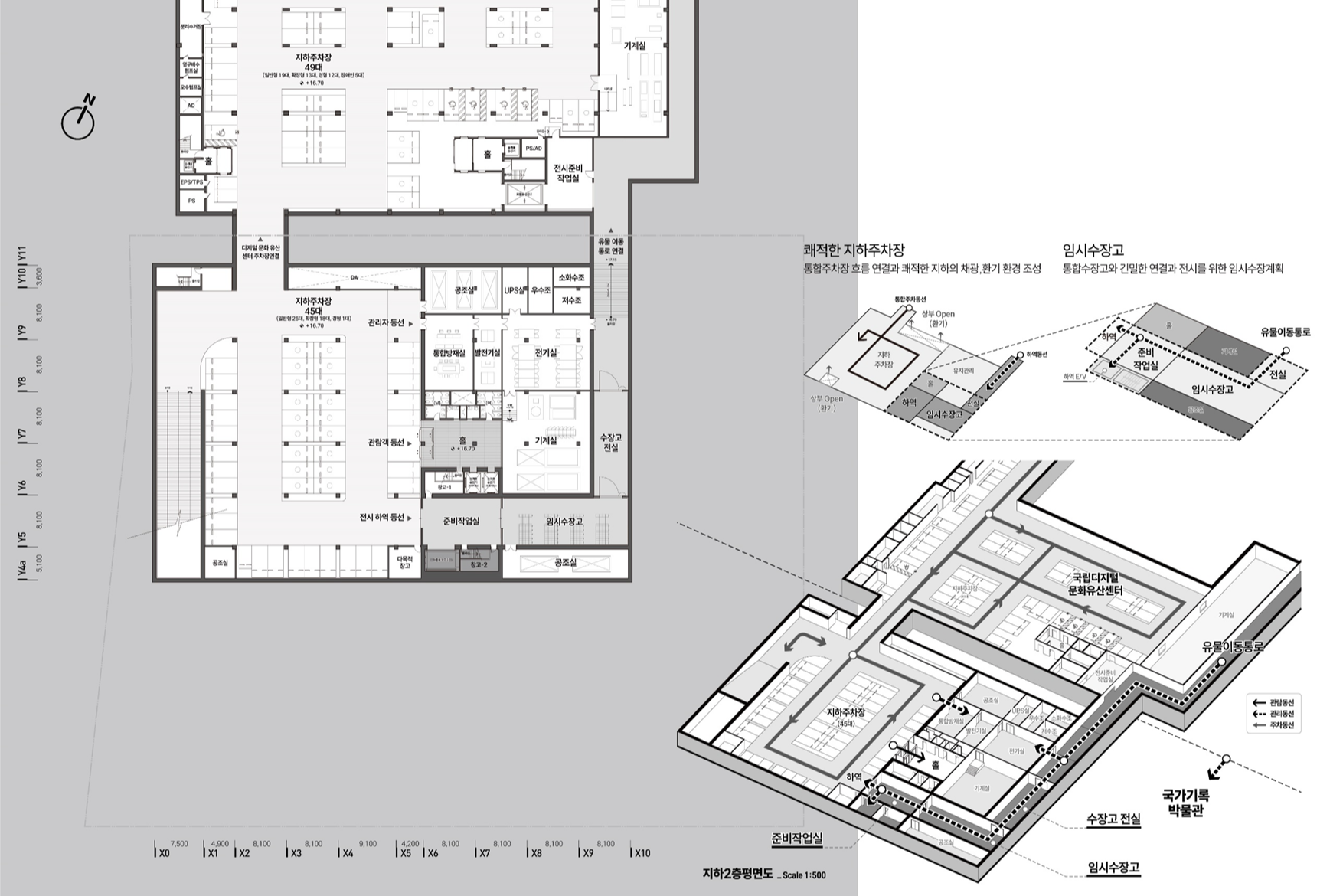
지하 2층은 단지 내 통합주차장의 원활한 흐름을 만들어 주고, 충분한 주차공간과 쾌적한 지하주차 환경을 만들었으며, 유물 동선을 명료하게 연결해 수장 전실을 만들고 주차장을 연결하는 임시 하역동선과 임시 수장고까지 하영 영역을 완벽히 분리한다.

쾌적한 전시공간과 효율적인 사무영역이 조성된 지하 1층 박물관 거리는 전시 로비를 중심으로, 외부마당의 자연, 오픈된 갤러리 카페, 뮤지엄샵을 마주하게 된다. 이와 같은 프로그램을 조성해 메인 관람 동선이 더욱 풍성하고 의미 있게 만들어지길 의도했다. 또, 메인 기능인 기획전시는 도입전시 및 로비와 가장 근접하게 두어 관람자들이 선택적으로 쉽게 찾고, 사무영역 또한 자연이 유입되는 선큰 마당으로 직원의 복지를 만들어 주고 관람이 없더라도 단독적인 운영이 가능하게 조닝하여 업무 효율을 높였다.

박물관 진입부에 있는 선큰은 박물관 거리와 지하 전시공간에 자연채광과 환기 등 쾌적함을 더해준다. 지상으로 건물에 진입하면서 선큰마당을 양옆에 두어 관람자의 시선을 끌고, 건물의 입면과 선큰마당에 채워진 사람들의 행위로 인해 입체적으로 더욱 풍부한 공간이 만들어진다.

주변 맥락을 받아주며 사방으로 열린 진입동선을 통해 건물 내부에 들어오면, 수직으로 시원하게 뚫린 아트리움을 마주하게 된다. 건물 가장자리로는 기록물을 선택적으로 열람하는 도입전시가 마련되며 사진, 영상, 비디오, 도면 등 다양한 콘텐츠의 서가들로 관람객의 도입을 맞이한다. 그 안의 크고 작은 보이드 공간은 다양한 전시 동선과 그 속에 떨어지는 빛으로, 관람객의 흥미를 더욱 유발하게 된다.


2층으로 올라오면 중앙 아트리움을 중심으로 교육·체험과 상설전시1과 2의 관람이 순차적으로 진행되며, 곳곳의 수직동선과 보이드를 통해 관람객들의 선택적 관람이 가능해지고, 입체적인 전시환경이 구축된다. 건물 외곽 전시월은 건물 안팎으로 다양한 전시의 가능성을 열어주는 공간 큐레이팅을 가능케 한다.

자연과 어우러진 건물의 전경이다. 전시벽의 외측부를 통해 자연 재료에 새겨지는 양각과 음각 기법을 입힌 전시 월은 외부의 빛에 차양 역할을 하고 내부의 기록물을 보호한다. 건물 밖에서 기록 박물관의 정체성을 확인할 수 있고, [기록은 투명성과 정직함이다] 라는 기록의 정의가 잘 드러나는 주요한 요소 중 하나다.

내측 벽면은 아날로그와 디지털을 넘나들며 다양한 기록 전시로 채워질 수 있게 만들어 준다. 이처럼 건물 자체가 하나의 기록물이 되는 우리 박물관은 시간성에 따라 표정이 바뀌는 전시 형태의 새로운 변화를 이끌어 내게 된다.


상설전시 속 중심부에 빛이 떨어지는 거대한 비움의 공간은 기록에 대한 교육과 체험의 장이 된다. 지하 1층부터 지상 3층까지 뚫리는 이 공간은 자연을 조망하며 쉴 수 있는 편안한 환경으로 조성된다. 대공간으로 시원하게 열린 아트리움은 다양한 세대의 사람들이 한데 모여 기록에 대한 교육과 체험을 하는 건물의 핵심 공간으로 이 공간을 중심으로 개인은 기록을 직접 시도하고, 전시까지 해보는 새로운 박물관이 완성됩니다.

이 전시물은 현존하는 세계 최초의 금속 활자인 직지심체요절을 재현한 천창 속 커튼 형식의 전시물이다. 프랑스 국립 도서관에서 소장하고 있는 우리의 소중한 기록 유산의 안타까움을 일깨워 주는 공간이 된다.

안전한 기록 환경 속 우리 국가기록박물관은 기록의 가치를. 역사를. 켜켜이 기록하고 재조명하는 차별화된 형태의 박물관이 되길 기대한다. 멈추지 않는 시간 속에서 백지 위에 새로운 기록을 써 내려가듯 유의미한 역사가 번져 나갈 것이며, 방문하는 관람객들이 이곳을 통해 기록에 대한 중대함을 알아가고 실제로 개인의 기록을 경험함으로써 소중한 기록의 가치를 일깨우길 진심으로 바란다.
| 대전사회복지회관 기획디자인 국제설계공모_당선 (0) | 2025.05.08 |
|---|---|
| 인천 다목적훈련장 건립사업_당선 (0) | 2025.03.25 |
| 여의도 00기관 노후청사 신축공사 (헌정회+의정연수원)_당선 (0) | 2024.12.03 |
| 이천시 로컬복합상생[신활력]센터 건립 (0) | 2024.10.04 |
| 인천통합보훈회관 신축공사_당선 (0) | 2024.08.20 |
댓글 영역