


<로컬푸드마트>
어느 지역에나 존재하는 로컬푸드는 지역에서 생산하는 먹거리를 장거리 이동이나 다단계 유통과정을 거치지 않고 신선한 먹거리들과 비교적 저렴한 비용으로 생산자와 소비자가 긴밀한 관계로 바로 직결되는 농촌의 새로운 유통문화이다.
<신활력:상생 플러스>
농촌의 지역자산을 활용하여, 지역특화, 사회적 일자리 창출 등 자립적인 성장기반을 구축하는 데 중점을 두는 농촌분야 핵심사업이다.
이 두가지 공간이 공존하는 이천시 로컬복합상생(신활력)센터가 이천시에 들어선다.
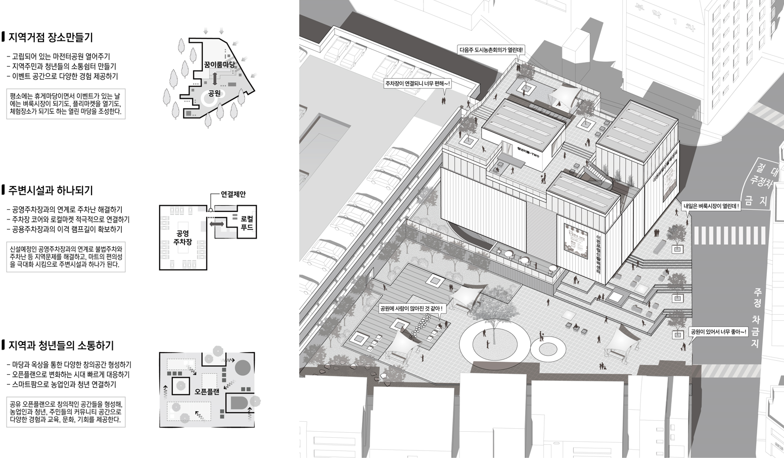
도시와 농촌사이, 주민과 함께하는 마을 만들기
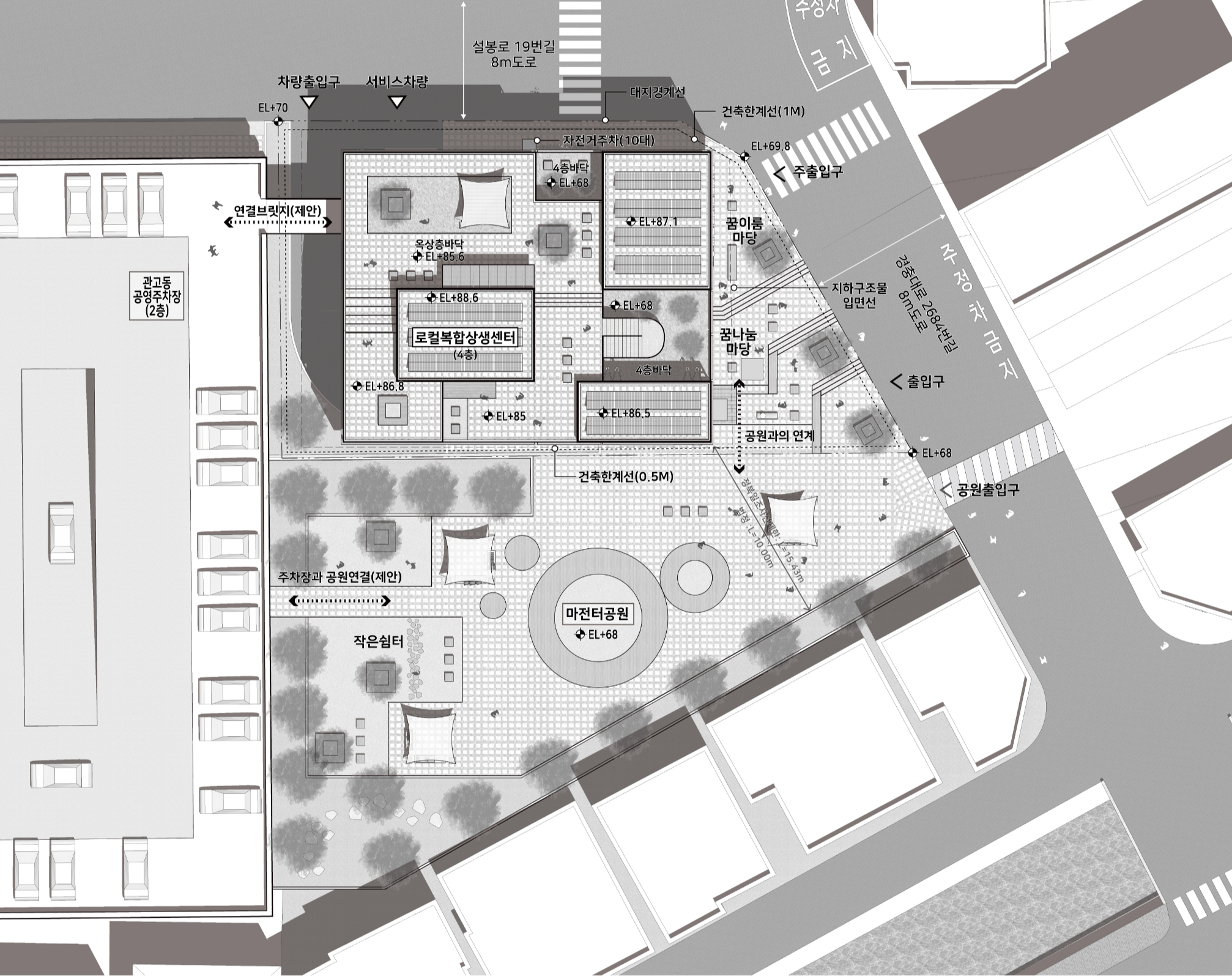
현 대지는 전면에는 마전터 공원이, 측면에는 관고동 공영주차장이 들어설 예정이며 그 주변으로는 오밀조밀한 주거지가 형성되어 있다. 로컬마트와 각 종 커뮤니티 공간이 이 대지에서 어떤 조화를 이루어야 할까를 시작으로 본 프로젝트를 시작했다.

현 사이트에 문제라고 느낀점은 첫 번째로 공원과의 대지간 단절로 인한 5m높이 되는 석축옹벽이었다. 휴게공원인 앞대지와의 2m 단차를 적극 이용해 주변에 열린공간을 만들어 이천시 관고동의 새로운 거점장소를 부여하자는 방향을 이 문제를 극보하고자 하였다.
두번째로는 보차가 혼재된 두 도로와 여기저기 불법주차들로 인한 어수선한 거리였다. 대지 옆, 약 200대 규모의 공영주차장이 신설되어 이 문제는 어느정도 해결되겠지만 새롭게 지어지는 관고동 공영주차장도 로컬센터 설계의 큰 이슈로 보았다. 그럼으로 새로 생기는 두 건물을 긴밀하게 연계시켜 서로의 필요성을 만들고 이용자들의 편의성을 증진시키자는 또 하나의 그림이 그려졌다.
마지막으로, 이천시의 지역 청년들과 농업인들의 커뮤니티 공간을 다채롭게 만들어 이들에게 기존에 없던 다양한 경험과, 교육, 문화, 기회를 제공하고자 대규모의 한층을 오픈플랜으로 계획하게 되었다.

이천시 중심 생태축에 인접해 있는 이 공간은 주민들에게 어떤 얼굴을 보여주어야 할까. 로컬마트와 커뮤니티 공간이 되기 전에 인접대지에는 주거지들이 형성되어 있다. 자칫 사생활 침해와 시선의 교차가 이루어져 그들을 불편하게 할 수도 있다는 생각에 일부는 막고 열어줄 곳은 열어주어, 그들을 배려하는 공생의 입면을 제안하고자 한다.


비워낸 1층에서는 넓은 마당으로 각 종 행사와 버스킹, 프리마켓, 벼룩시장, 일자리장터 등 다양한 행사에 적합하게 계획했고, 공원과 이어지는 계단식 휴게마당에서는 평상형 휴게데크와 버스킹 무대의 객석 등으로 활용해 누구나 지나가면서 쉴 수 있는 공간으로 활용하고자 한다.

지하1층에서 관고동 공영주차장과 연결시켜 협소한 대지에 차량의 순환체계를 만들어 이용자들이 더 편리할 수 있게 동선을 유도했고, 관고동 공영주차장에 주차하는 이용자동선도 연계시켜 들어갈 면적에 비해 작은 현대지를 효율적으로 쓰고자 하였다.
이용자들은 1층을 비워 공원과 연결시킴으로 이용자 접근성 및 공간의 입체성을 높혔고, 건물에 들어와 직매장에 들어가는 동선 사이에 공용홀을 계획해 자율포장대와 카트보관대로 공간의 효율을 높혔다. 또, 직원사무실은 홀에 면해 있어 물품동선과 이용자들을 볼 수 있는 위치에 배치됐고, 마트 내부에서는 무빙워크를 설치해 수직적인 이동이 편리하게 만들었다.


마지막으로, 청년과 농업인들을 위한 커뮤니티 공간은 상층부에 입체적으로 계획해 창의적이고 다채로운 개방형 공유크레이티브 스페이스를 의도하고자 했고, 복층의 청년공유오피스, 곳곳의 외부마당, 이어지는 옥상정원 등 입체적인 공간들을 계획해 기존에 없던 내일을 꿈꾸는 사람들의 공간을 조성했다. 이천에 거주하는 사람들 뿐만 아니라 나아가 도시 농촌의 포럼공간이나, 청년들의 창업 및 일자리 창출의 발판이 되는 장소가 되길 기대한다.

이렇게 만들어진 로컬복합상생[신활력]센터는 주민들에게는 쉬고 다양한 경험을 제공하는 편안한 거점공간임과 동시에 이천에 거주하는 사람들 뿐만 아니라 나아가 도시 농촌의 포럼공간이나, 청년들의 창업 및 일자리 창출의 발판이 되는 장소가 되길 기대한다.
| 국가기록박물관 국제설계공모_당선 (3) | 2025.02.27 |
|---|---|
| 여의도 00기관 노후청사 신축공사 (헌정회+의정연수원)_당선 (0) | 2024.12.03 |
| 인천통합보훈회관 신축공사_당선 (0) | 2024.08.20 |
| 밀양 연극교육체험관 건립 (0) | 2024.07.09 |
| 계양구립 종합누리센터 신축공사 (0) | 2024.06.02 |
댓글 영역