
메인투시도
[ 헌정회: 의정 활동을 펼쳤던 전직 국회의원들의 원로모임 ]
[ 의정연수원: 의회에서 활동하는 실무 인재를 양성하는 교육센터 ]
어린시절 수학여행으로 한번쯤은 가 봤고, 올림픽대로 한강변을 스치는 일상과 정치 뉴스에서 자주 접하는 국회의사당을 우리는 멀리서 마주할 수 있다. 국회의 그 사이트 주위로 국회에 관련한 여러시설들이 존재하며, 한강변을 따라 바라보이는 부지에 헌정회와 의정연수원이 함께하는 또 하나의 건물이 기획되었다.
독립적인 헌정회와 의정연수원이 함께하고, 공존하는 국회 플랫폼 만들기


서로의 독립성을 유지하고 공용공간은 함께 쓰는 공생의 계획안은 국회안에서 어떤 얼굴이어야 할까?
서울시 영등포구 의사당대로 1. 그리드 형식으로 만들어진 축선에 순응한 국회 내 건물들. 그 안에 있는 헌정회 부지 남측으로는 거대한 50m도로 국회대로가 위치하고, 북측으로는 6m 남짓되는 국회내측도로가 위치한다. 대지내에는 8m 양방향 도로가 존재하며 한강에 근접해 주변에는 수려한 자연환경과 녹지공간이 풍부하다. 또, 200m 근방에 국회의정관과 국회박물관이 위치해 있다.


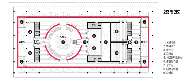
첫 번째로 국회의 그리드형 축선 위에 사각형의 명쾌한 건물 형태를 형성하고, 부지 내의 도로체계와 외부공간을 지정했다. 서쪽으로는 국회 산책로와 연계한 의정연수원의 앞마당을, 동쪽으로는 한강을 바라보는 헌정회만의 건강증진마당을 부여했다. 출입빈도수를 기반으로 남쪽의 국회대로측에서는 헌정회의 출입구를, 국회의정원과 가까운 북쪽의 국회내측도로는 의정연수원의 출입을 두어기관별 별도의 출입구와 외부마당을 통해 독립성을 유지하고, 북측에 주차를 몰아 안전한 보행환경을 만든다. 그 사이, 로텐다홀을 두어 로텐다 광장을 조성해 모든 국민이 쉬어가는 거대한 공용공간을 내어준다.

국회 내 모든 건물들은 기단부와 지붕선이 마치 '나는 국회건물이다' 말하는 듯 시각적 통일감을 준다. 국회파사드를 분석해 이를 현대적으로 재해석함으로 국회에 들어설 새로운 헌정회의 얼굴은 기단부는 12개의 열주를, 중심부는 청렴함을 상징하는 유리를, 전반적으로 정직한 파사드를 형성하며 건물의 캐노피로 지붕부를 장식한다. 그러므로 두 기관은 영역은 명확하지만 하나의 건물로 읽히는 유일무이한 헌정파사드를 갖게 된다.

'두 기관이 함께하는' 2층 평면은 로텐다홀을 중심으로 가장 큰 면적을 차지하는 대회의실(및 중형강의실)이 위치해 500명 이상 인원의 대기공간을 수용하는 공용공간의 층이다.

'자연과 함께 공존하는' 3층 평면은 대회의실을 중심으로 독립적인 두 기관이 각자의 입체적인 라운지를 갖고 의정연수원은 국회산책로뷰를, 헌정회는 한강공원뷰를 바라본다.

'두 기관이 서로 독립하는' 4층 평면은 완벽한 독립의 층으로 내부공간에서 연속적인 야외공간을 부여함으로 쾌적한 휴게환경 및 이벤트공간을 만들고 기능적인 공간에서 나와 여유를 즐기는 헌정하늘정원 층이다.
그렇다면 각 층의 엮어주는 이 로텐다홀은 무엇일까?
로텐다홀의 사전적 의미는 법안이 순조롭게 통과되기를 바라는 의미를 지닌 원형로비를 뜻하는데 우리는 이 로텐다홀을 현대적인 공간으로 재해석해 접견, 회의, 교육, 휴게 등 다양한 행위가 일어나 모든 국민들에게도 이 공간을 내어줌으로 다양한 소통의 소리까지 만들어 내는 공간을 제안하고자 한다.

또, 이 건물은 대한민국 국회부지 내의 땅이다. 가장 중요한 부분중에 하나는 보안일 것이다. 해당건물은 주가 헌정회인 만큼 가급 국가보안시설로 분류되며 정문에서부터 1차통제가 이루어지고 cctv→안내데스크→층별중앙통제 및 개별프로그램실의 2차통제→주요특수시설의 3차통제까지 총 5단계의 체계화된 보안계획을 가지고 있다. 이를 헌정회영역, 의정연수원영역, 모두가 이용하는 공동영역 3가지로 분류해 보안하고자 한다.

헌정회와 의정연수원, 로텐다홀을 중심으로 한 공간의 분리와 결합. 시설별 각기 다른 목적의 이용자들의 확실한 동선분리.
이러한 개념을 토대로 다채롭고 입체적인 공간을 국민에게 내어줌으로써 우리는 모두가 함께하고 공존하는 국회 내의 새로운 헌정플랫폼이 되길 기대한다.
| 인천 다목적훈련장 건립사업_당선 (0) | 2025.03.25 |
|---|---|
| 국가기록박물관 국제설계공모_당선 (3) | 2025.02.27 |
| 이천시 로컬복합상생[신활력]센터 건립 (0) | 2024.10.04 |
| 인천통합보훈회관 신축공사_당선 (0) | 2024.08.20 |
| 밀양 연극교육체험관 건립 (0) | 2024.07.09 |
댓글 영역