
하루에도 수없이 오가는 사람과 물건들. 오늘도 어김없이 시작되는 그 오랜 길 위에서, 잠시 숨을 고르고 쉬어갈 수 있는 마당을 마련하는 곳, 인제우체국. 인제군 주민들과 자연스럽게 어우러지는 이 공간에 새롭게 우체국이 들어선다. 인제의 일상을 잇고, 사람과 물류의 흐름을 유기적으로 통합하는 인제우체국. 이제는 닫힌 행정시설이 아니라, 인제 주민 누구나 편하게 드나들 수 있는 열린 공간으로, 사용자와 운영자의 경계를 유연하게 잇는 새로운 공공 우편 플랫폼을 제안한다.

우리의 행복을 배달하는 집배원들은 어떤 어려움을 안고 있을까?
이륜차를 이용해 업무를 수행하는 많은 집배원들은 늘 교통사고의 위험에 노출되어 있다. 더불어, 열악한 근무환경과 근무시간을 초과하는 과도한 업무량은 단지 우체국만의 문제가 아니라, 사회 전체가 함께 고민해야 할 문제이다.
모두가 이용하는 공간인 만큼, 특정 시기에 업무가 집중되는 현상도 또 다른 과제로 다가온다. 명절과 같은 특수기에는 평소보다 훨씬 많은 우편물이 몰리며, 이는 물류량 증가에 따른 배송 지연, 업무 부담 가중, 처리 능력의 한계 등 여러 문제가 발생한다.
우리는 이처럼 우체국을 둘러싼 작지만 본질적인 사회적 문제들을 짚어가며, 닫혀 있던 행정시설의 경계를 허물고자 했다.

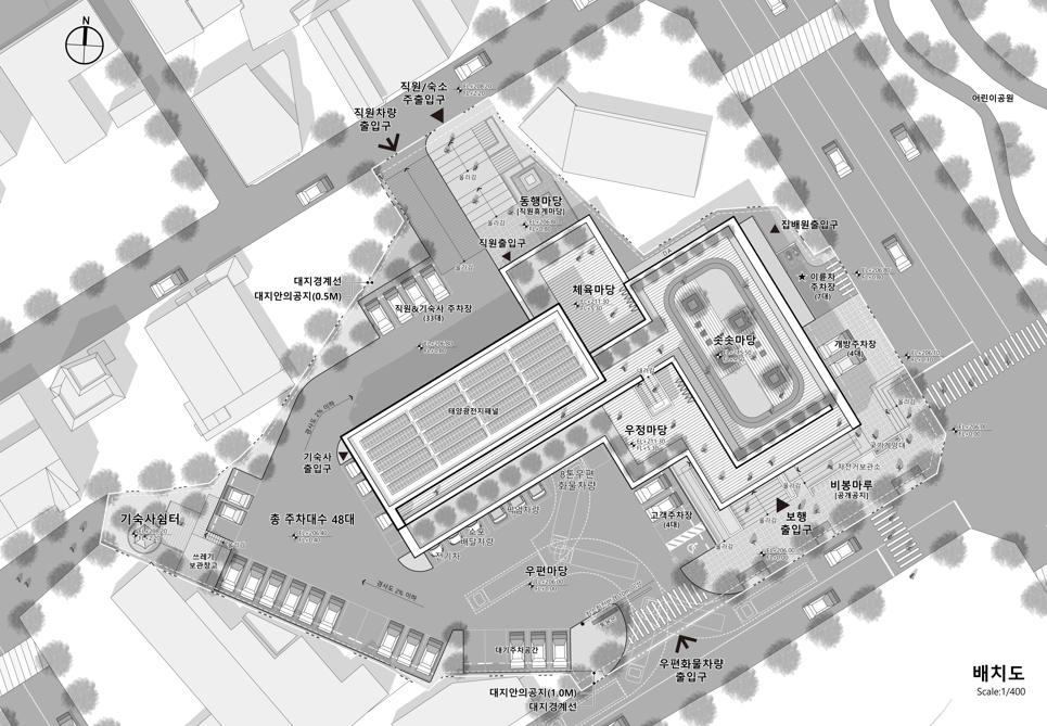
인제의 중심에 들어서는 인제우체국은 북측에 6m 도로, 남측에 약 9m 도로가 접하고 있으며, 동측에는 도로 확장 공사가 예정된 완충 공간이 자리한다. 상업지역에 위치한 이 대지는 주거지역, 공원, 관공서 등 다양한 용도의 대지와 건축물들이 인접해 있어 접근성이 뛰어나다.
기능을 넘어서, 모두를 위한 공간으로

인제우체국은 단순한 물류처리 시설이 아니라, 지역과 사용자, 기능과 일상이 유기적으로 맞물리는 새로운 공공 플랫폼이다. 지형과 가로 환경은 주변 대지 맥락과 자연스럽게 연결되며, 우편·물류 기능은 동선 간섭을 최소화해 효율을 극대화한다.
공공성과 이용자 편의성을 고려한 열린 마당은 커뮤니티 공간으로, 그 안에서 크고 작은 소통이 이루어지도록 계획했다. 업무 공간과 유기적으로 이어지는 휴게 공간은 과중한 업무에 지친 직원들이 일상 속에서 환기할 수 있는 여유를 제공한다.
향후 물류량 증가나 업무 방식 변화에도 유연하게 대응할 수 있도록, 증축이 가능한 평면 구조로 계획했다.

동선과 지형을 고려한 레벨 계획, 사회적 약자를 배려한 유연한 공간 구성은 직원과 사용자 모두에게 열려 있는 새로운 우편 플랫폼의 기준을 제시한다.
우체국과 기숙사를 별동으로 나누지 않고 단일 건물로 구성함으로써 우편 마당의 활용 범위를 넓혔다. 이를 통해 명절이나 특수기에는 외부 마당을 야외 적재 공간으로 유연하게 활용할 수 있도록 계획했다.

세 방향으로 접한 도로를 활용해 사용자 유형에 따라 진입 경로를 구분하고, 효율적인 전용 진출입 동선을 계획했다. 이러한 영역 분리는 각 기능의 독립성을 확보함과 동시에 차량 흐름을 분산시켜 보행 안전을 높이는 역할을 한다.
열린 공개공지 공간은 동측의 어린이공원과 연계되어 지역 내 다양한 이벤트에 활용할 수 있으며, 서로 연결된 외부 공간은 곳곳에 다양한 휴게공간을 형성한다.

고령 인구가 많은 인제 지역의 특성을 고려해, 안전한 보행 동선과 효율적인 기능 동선을 함께 중심에 두고 계획했다. 일반 고객의 방문이 집중되는 시간대에는 우편차량과 이륜차의 이동을 최소화해 보행 안전을 확보하고, 그 외 시간대에는 우편물과 소포의 흐름을 순환 구조로 구성해 물류 동선이 끊기지 않도록 했다.

업무와 생활의 경계를 내부적으로 명확히 구분하면서, 개별성과 프라이버시를 고려한 짜임새 있는 평면을 구성했다. 쾌적한 주거환경을 위해 기숙사 외부에 공용 테라스와 휴게공간을 마련하고, 일상 속에서 회복하고 머무를 수 있는 복지 공간으로 계획했다.

주 출입구에서 바로 연결되는 고객실과 현업실은 이용객이 우체국 업무를 쉽고 빠르게 처리할 수 있도록 배치했다. 발착장과 직원 출입 동선에 연계된 업무 공간은 우편과 물류 이동을 최소화해 업무 효율을 높인다.


방문 고객 응대와 우편·물류 운영의 효율을 동시에 고려한 조닝을 통해, 효율적이고 기능 중심의 동선이 구현된다. 또한 기능별 천장고를 계획해 쾌적한 발착 공간을 조성했으며, 이러한 단면 계획은 실내외 쾌적성 확보에도 긍정적인 영향을 미친다.

인제우체국은 모두를 위한 공간으로서 인제 지역의 일상을 자연스럽게 잇는 역할을 한다. 사람과 물류의 흐름이 유기적으로 통합되어, 단순한 우편물 처리 시설을 넘어 지역사회와 주민 모두에게 열린 친근한 공간으로 자리매김한다. 더 이상 닫힌 행정기관이 아니라, 누구나 편안하게 드나들 수 있는 열린 플랫폼이 되어 우편과 물류 기능이 원활하게 연결되고, 직원들이 효율적으로 업무를 수행할 수 있는 환경을 제공한다. 이를 통해 인제우체국은 지역 사회와 사람들 사이의 소통과 연결을 강화하며, 앞으로도 변화하는 물류 환경과 주민의 다양한 요구에 적극적으로 대응하는 중심지가 될 것을 기대한다.
| 인천 반다비 체육관 설계공모_당선 (0) | 2025.09.11 |
|---|---|
| 충남 의병기념관 및 보훈관리모델링사업 설계공모 (0) | 2025.09.10 |
| 대전사회복지회관 기획디자인 국제설계공모_당선 (0) | 2025.05.08 |
| 인천 다목적훈련장 건립사업_당선 (0) | 2025.03.25 |
| 국가기록박물관 국제설계공모_당선 (3) | 2025.02.27 |
댓글 영역