
[인천 반다비 체육관]의 대상지는 [인천 장애인 체육센터]라는 기존 시설을 끼고, 추가로 연계하여 건립되는 맥락이다. 우리는 단순히 기존 시설과 브릿지로 연결하는 또 다른 체육관의 추가 보다는, 신축되는 [반다비 체육관]을 통해 기존 [장애인 체육센터]의 취약점인 정면성과 인지성 부족을 개선하면서도 기존 시설의 세련된 조형과 재료의 패턴을 효과적으로 연계하여, 체육센터 단지로서의 완성과 두 시설의 연결, 대상지 뒤의 한마음 공원을 품어내는- 주민들의 일상을 풍요롭게 만드는 계획을 구상하고자 제안한다.

시설의[연결]
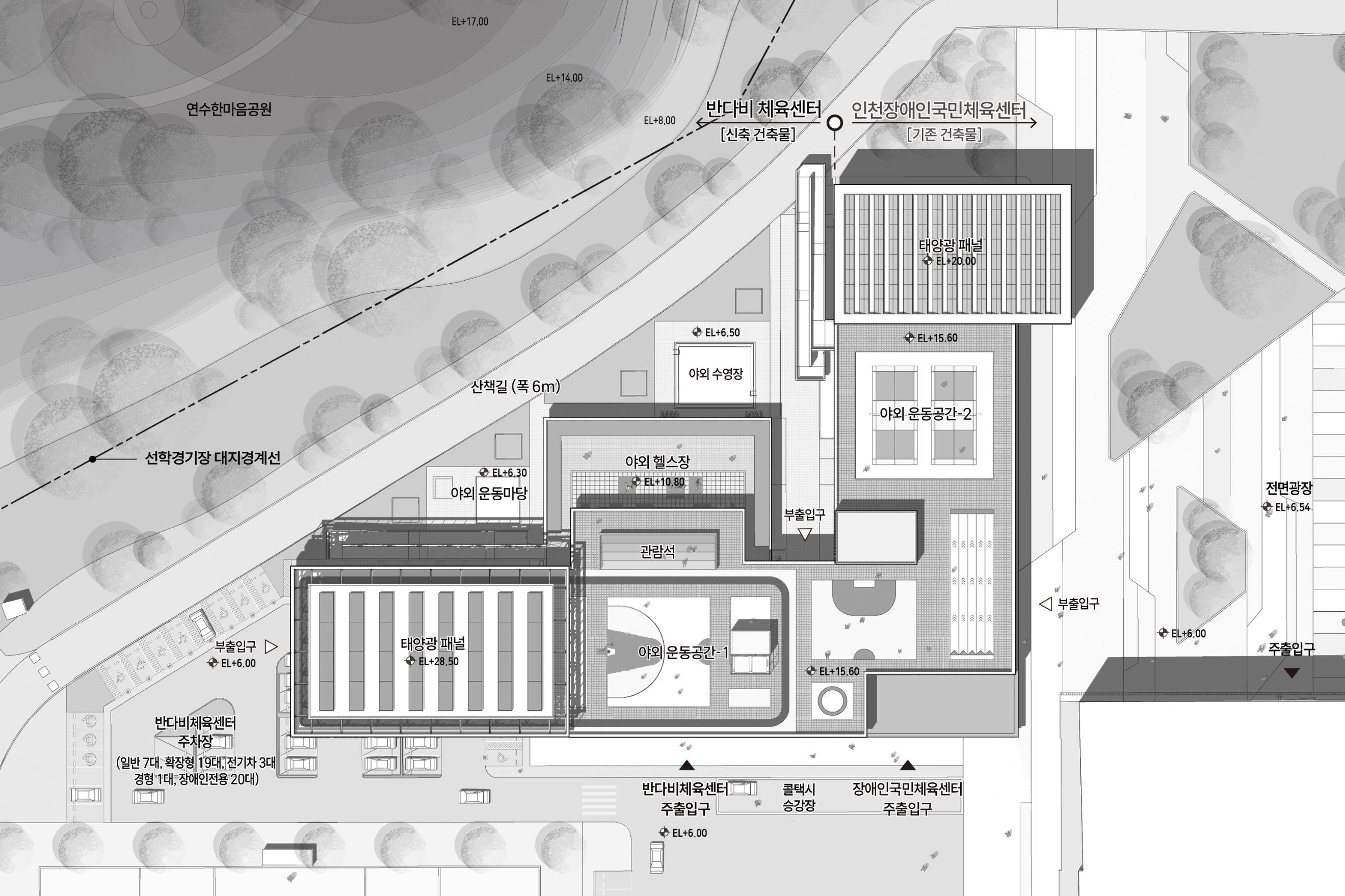
반다비체육센터는 기존 인천장애인국민체육센터와 통합하여 하나의 건축적 체계로 계획되었다. 두 시설은 각각의 기능을 유지하면서도 단일 건물로 인지될 수 있도록 디자인하였고, 센터 내부는 주요 공간들이 자연스럽게 이어지도록 구성되어, 이용자 간의 교류와 소통을 촉진한다.

그동안 인천장애인국민체육센터가 중심이 되어온 장애인 체육활동은, 반다비체육센터의 도입을 통해 이용자 범위와 프로그램의 폭이 크게 넓어졌다. 이제 두 시설은 기능적으로 보완하며 운영되어, 단일 시설에서는 제공하기 어려웠던 다양한 활동과 복지 서비스를 가능하게 한다.

"어우름 라운지"는 기존 인천장애인국민체육센터 이용자와 반다비체육센터를 찾는 장애인·비장애인이 자연스럽게 만나고 연결되는 중심 공간이다. 단순한 로비를 넘어 교류와 소통의 장으로 기능하며, 두 시설 간의 동선을 매끄럽게 이어줌으로써 이용 편의성을 높인다.

자연의[소통]
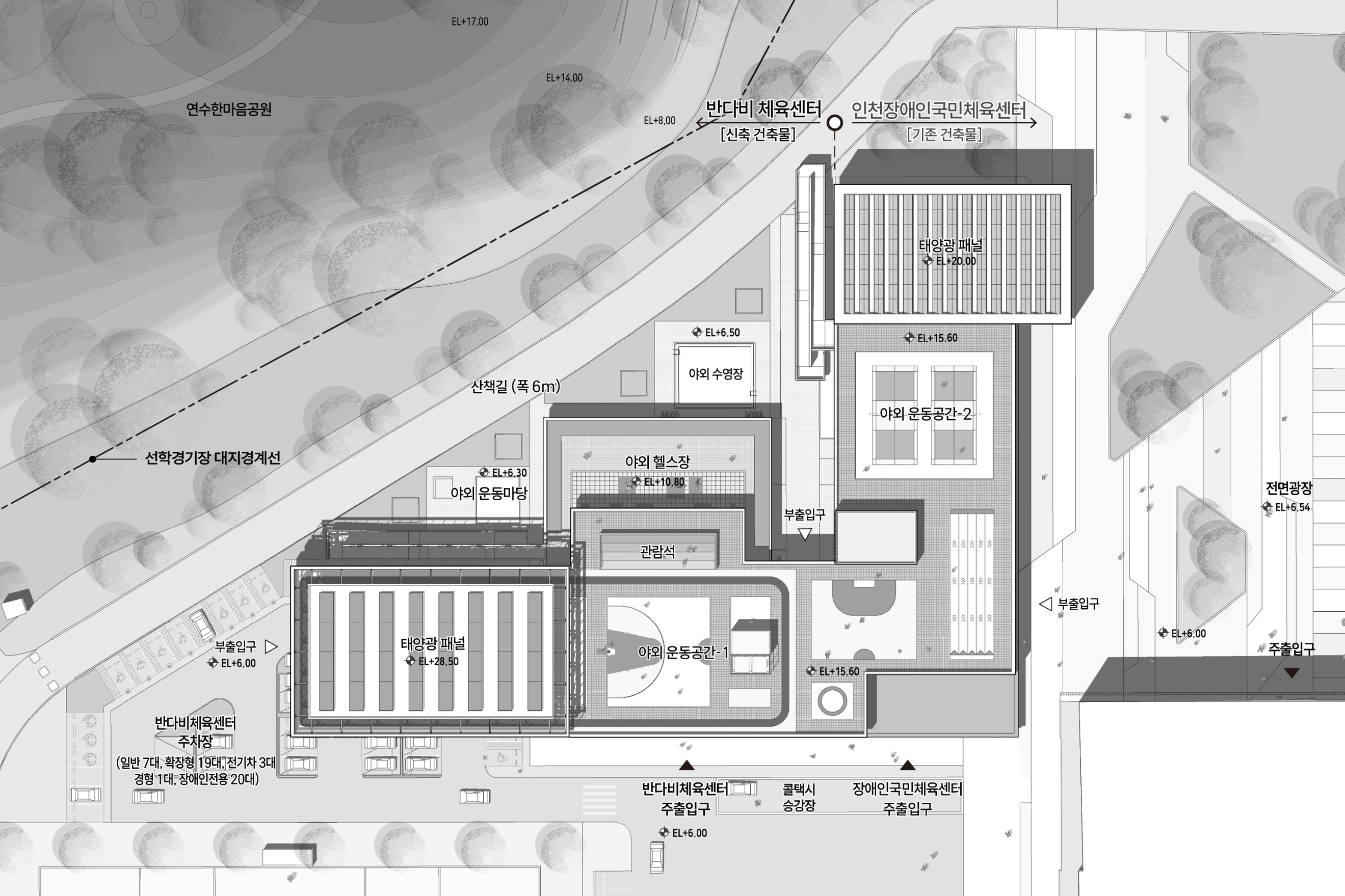
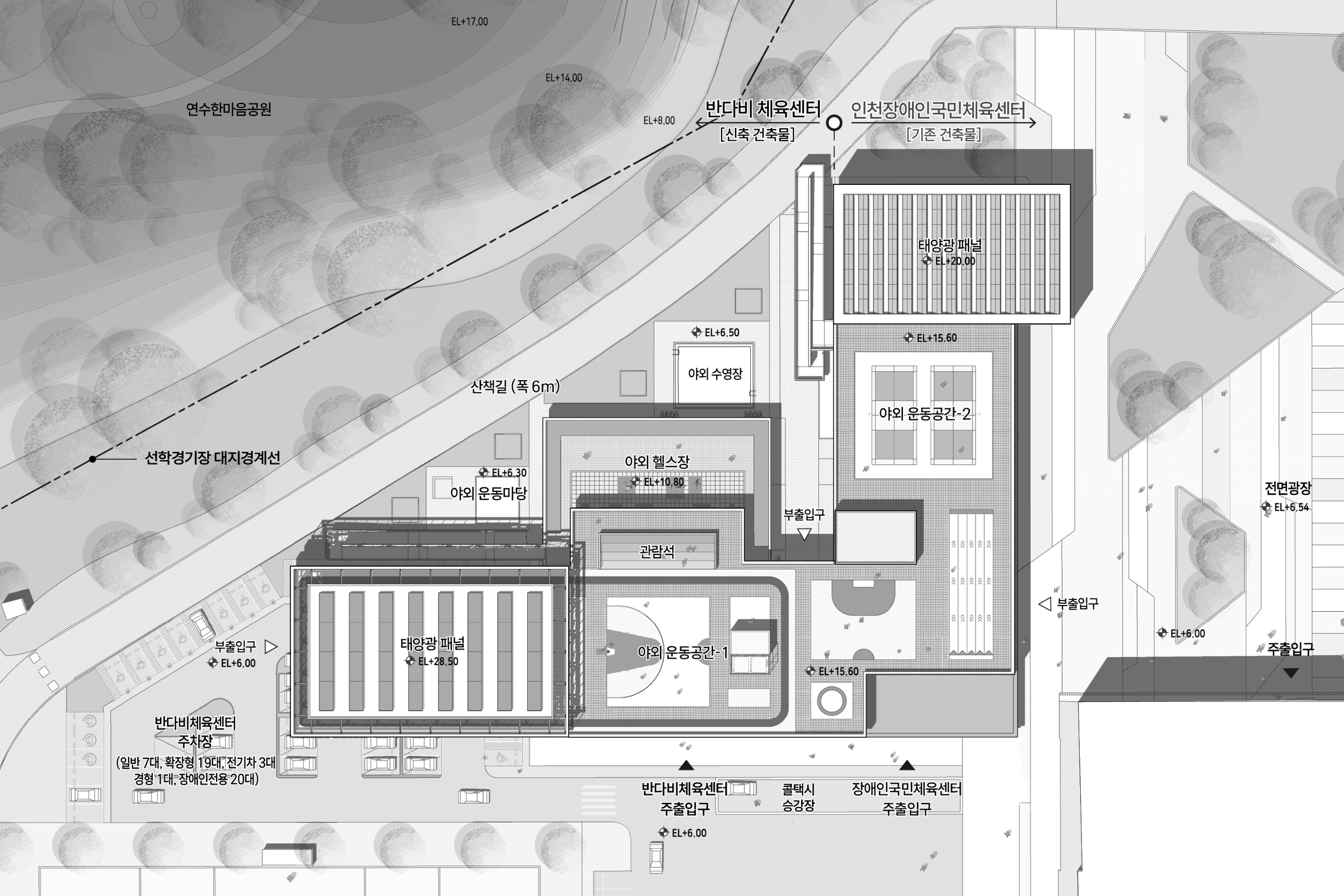
단순히 물리적 통합에 그치지 않고, 기존 공간과의 연결뿐 아니라 주변 환경과의 조화 또한 주요한 과제로 삼았다. 주요 운동공간은 자연의 흐름과 연속되도록 계획되었고, 내부와 외부가 분리되지 않은 체육 환경을 지향했다. 사용자는 시선과 동선을 따라 자연을 느끼고, 운동과 휴식이 자연스럽게 어우러진 공간을 경험하게 된다 .

공원과의 관계를 고려한 배치를 통해 시민들에게 밀도 있는 녹지 마당을 제공한다. 내부와 외부, 활동과 휴식, 장애인과 비장애인이 자연스럽게 관계 맺는 구조를 통해 이용 경험은 한층 풍부해진다.

단순한 체육시설을 넘어선 열린 복지 공간으로 작동하며
이는 곧 모두가 함께할 수 있는 건강한 체육 문화의 기반을 마련하는 것이다.

공간의[확장]
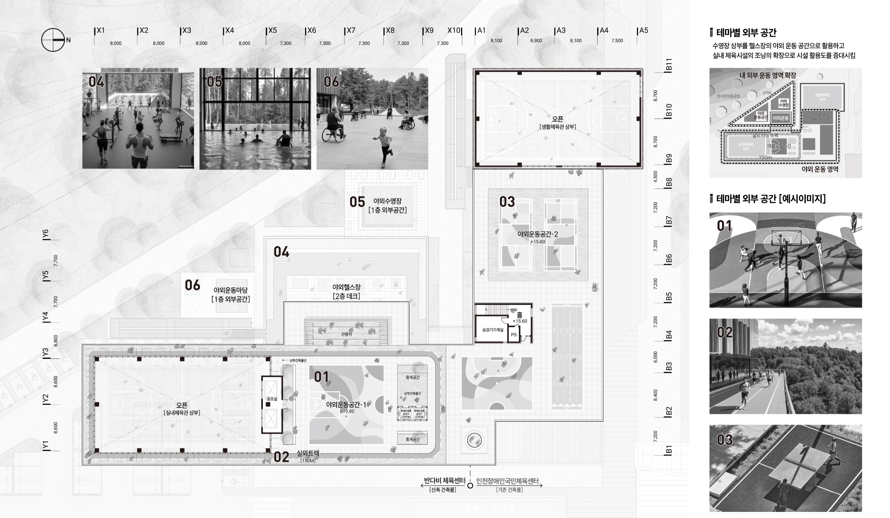
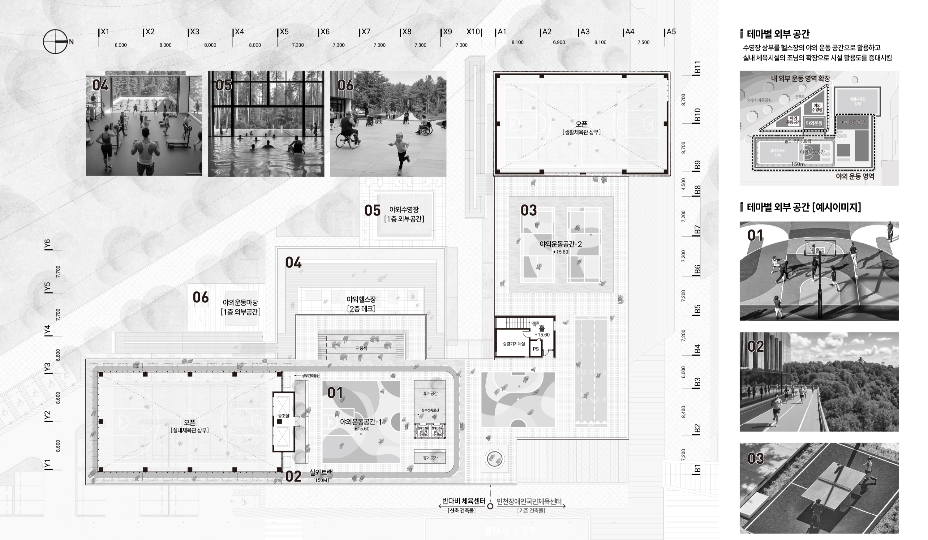
반다비체육관과 인천장애인국민체육센터의 옥상층은 상호 연계·확장되어 통합적 체육 환경을 이룬다. 옥상 마당은 인도어와 아웃도어를 아우르는 열린 러닝 트랙을 중심으로 야외 운동 코트와 관람석이 배치되어 사용자 모두가 어울릴 수 있는 공간이 된다.
150m 트랙은 내·외부를 조망하는 순환형 동선으로 작동하며 체육관과 시각적으로 연결되어 실내외 흐름을 하나로 잇는다.

하나의 공간 안에서 기능은 확장된다. 운동과 재활뿐 아니라 휴식, 교류, 문화적 경험까지 포괄하여 다채로운 생활 활동을 수용한다. 이러한 확장은 개별 시설로는 충족하기 어려운 복지적 역할을 가능하게 한다.

실내외를 오가는 활동은 단절 없이 이어지며, 사용자의 신체 조건에 관계없이 자유로운 이동이 가능하도록 설계하였다.
운동 방식은 달라도, 그 흐름은 하나로 연결되며, 모두에게 열리고 함께 어울리는 반다비 체육센터가 되길 기대한다.


건축은 누군가에겐 벽이 되고, 또 누군가에겐 다리가 된다.
우리는 이 공간이 누구에게도 닫히지 않은, 모두에게 열려 있는 반다비 체육센터가 되기를 바란다.
증축으로 연결된 옥상과 새로운 동선은 단순한 공간 확장을 넘어, 사람과 사람을 잇는 다리가 되고자 했다.
이 작은 건축적 실천이 "장애가 더이상 장애가 아닌 세상"으로 이어지길 기대한다.

| 검단 다목적 체육관 설계공모_당선 (0) | 2026.01.20 |
|---|---|
| 갈매역세권 유치원 설계공모 (0) | 2025.11.04 |
| 충남 의병기념관 및 보훈관리모델링사업 설계공모 (0) | 2025.09.10 |
| 인제우체국 건립공사 (0) | 2025.06.13 |
| 대전사회복지회관 기획디자인 국제설계공모_당선 (0) | 2025.05.08 |
댓글 영역